Prodej bytu 1+kk, OV, 70,7 m2, ul. Opletalova 1566/30, P-1 Nové město
Opletalova, Praha
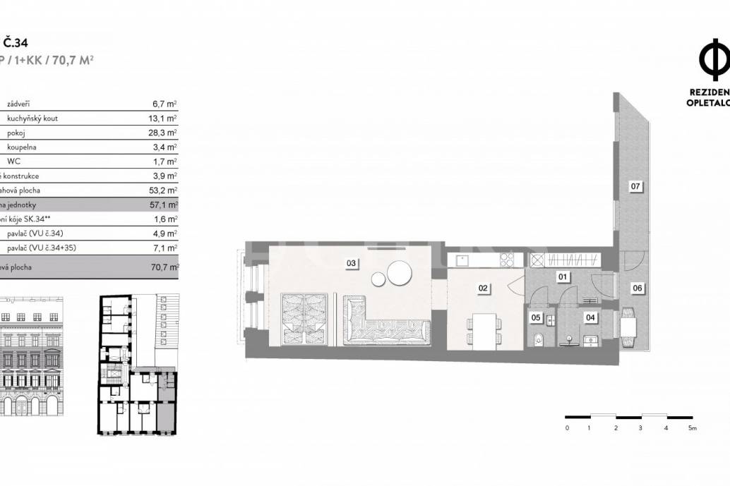
Krásný byt 1+kk o celkové ploše 70,7 m² s orientací na východní a západní stranu, vč. soukromé pavlače. 
Rezidence Opletalova je exkluzivním projektem, který nabízí byty o velikostech 1+kk – 3+kk, ateliéry a obchodní prostory pouhých pár kroků od Václavského náměstí. Do několika minut se tak dostanete pěšky na všechny tři linky metra (A,C – Muzeum, A,B – Můstek) i na Hlavní nádraží. Autem pak snadno vjedete přímo na severojižní magistrálu.
Řadový dům bude citlivě zrekonstruován se zachováním neorenesančních prvků, přitom bude splňovat vysoké nároky moderního bydlení 21. století. V jeho dvorní části budou dostavěny pavlače s příjemným výhledem do dvora s drobnou zelení. Nadstandardní výška stropů pak zaručí pocit vzdušného a volného prostoru, který orámuje kvalitní dřevěná podlaha. Díky vysokým stropům bylo možné vytvořit i praktická mezipatra, díky kterým je užitná plocha jednotek podstatně větší a doplňující moderního ducha projektu. Součástí modernizace domu bude prosklený výtah, klimatizace pro vybrané jednotky a recepce v přízemí.
Uvedené informace mají pouze informativní charakter a mohou se v průběhu inzerce změnit, nezavazují realitní kancelář ani prodávající k uzavření jakýchkoliv smluv a nemají předsmluvní charakter. Prodávající si vyhrazuje právo vybrat kupce na základě jím zvolených kritérií. Najdete nás na centrále pro Prahu 6 - Bělohorská 85 na Břevnově - od pondělí do pátku od 10:00 - 18:00 hodin.
| Typ nabídky: | Prodej | 
|---|---|
| Typ nemovitosti: | Byt | 
| Dispozice: | 1+kk | 
| Plocha: | 70m2 | 
| Typ budovy: | Cihla | 
|---|---|
| Financování: | Hotovost / Hypotéka | 
| Cena: | 10 983 000Kč | 
| Cena za m2: | 156 900Kč | 
| Energetická náročnost budovy: | Třída G - Mimořádně nehospodárná | 
 
                 
                 
                 
                 
                 
                 
                 
                 
                 
                 
                 
                 
                 
                 
                 
                