Prodej bytu 3+kk, OV, 106 m2, ul. Seydlerova 2150/5, Praha 5 - Nové Butovice
seydlerova 2150/5, Praha 5
| Typ nabídky: | Prodej |
|---|---|
| Typ nemovitosti: | Byt |
| Dispozice: | 3+kk |
| Plocha: | 106m2 |
| Typ budovy: | Panel |
|---|---|
| Typ vlastnictví: | Osobní |
| Financování: | Hotovost / Hypotéka |
| Cena: | 11 950 000Kč |
| Cena za m2: | 112 736Kč |
| Energetická náročnost budovy: | Třída C - Úsporná |
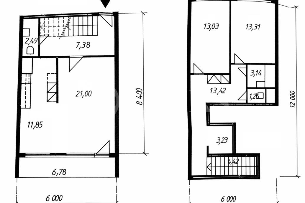
Chirš nabízí k prodeji prostorný mezonetový byt o dispozici 3+kk, situovaný v atraktivní a vyhledávané lokalitě Praha 5 – Stodůlky, v docházkové vzdálenosti od stanic metra trasy B – Nové Butovice nebo Hůrka (obě cca 5 minut chůze). Celková plocha bytu dle Prohlášení vlastníka činí 105,90 m², z toho zasklená lodžie 6,78 m² a sklep 4,59 m².
Dispozice a vybavení:
Prakticky řešený mezonet přirozeně odděluje společenskou a klidovou zónu, je situovaný ve 3. a 4. nadzemním podlaží (2. a 3. patro) udržovaného devítipodlažního panelového domu se dvěma prostornými výtahy. Společné části domu i výtahy jsou a zabezpečeny čipovým systémem a kamerovým dohledem, což zajišťuje komfortní a bezpečné bydlení.
Byt je po starší rekonstrukci stále v dobrém technickém stavu, umožňujícím okamžité bydlení. Zároveň ale nabízí ideální příležitost pro modernizaci dle vlastních představ. Díky velkorysé podlahové ploše je možné jednoduchou úpravou dispozice vytvořit například samostatnou pracovnu s oknem.
K bytu náleží také prostorný sklep (4,59 m²), umístěný v zabezpečeném 2. NP domu.
Spodní podlaží bytu – denní část:
• předsíň (7,38 m²)
• prostorný bývací pokoj s navazující kuchyní (32,85 m²) je prosklenou stěnou orientovaný na jih
• přímý vstup na zasklenou lodžii s výhledem do klidné jednosměrné ulice
• samostatné WC s umyvadlem (2,49 m²) s možností vybudování sprchového koutu
• praktický úložný prostor pod schodištěm.
Horní podlaží – klidová část:
• předsíň (17,84 m²)
• šatna (3,23 m²)
• dvě samostatné ložnice (13,31 m² a 13,03 m²)
• koupelna s vanou (3,14 m²)
• samostatné WC (1,26 m²).
Ložnice jsou orientovány na sever s volným výhledem na okolí, včetně budovy radnice Prahy 13 a na polikliniku Lípa.
Výborná lokalita:
Stodůlky patří mezi dlouhodobě velmi oblíbené rezidenční lokality s kompletní občanskou vybaveností. V bezprostředním okolí naleznete mateřské i základní školy, gymnázium, obchody, restaurace, kavárny, polikliniku i další služby.
Milovníci přírody a aktivního životního stylu ocení blízkost Prokopského údolí, Centrálního parku či parku Vidoule. V okolí se nachází také několik moderních fitness center.
Dopravní dostupnost je výborná – na blízkou stanici metra B Nové Butovice navazuje spojení autobusem na trasu metra A (Nemocnice Motol) nebo na Petřiny, Břevnov a Vypich.
Měsíční náklady na bydlení:
Měsíční poplatky spojené s užíváním bytu a zálohy na elektřinu podle vlastní spotřeby. Dlouhodobá záloha do fondu oprav je nastavena na 1982 Kč / měsíc.
Je Vám Váš byt malý? Nabídněte ho k výměně za tento.
Majitel si vyhrazuje právo prodat nemovitost nejvýhodnější nabídce.
Uvedené informace mají pouze informativní charakter a mohou se v průběhu inzerce změnit.Pro více podrobností kontaktujte makléřku: RNDr. Eva Pavlíková, tel. 605501990, mail: eva.pavlikova@chirs.cz
Pavlíkova Eva, RNDr.
Po 11 letech úspěšné spolupráce a profesního růstu... Více
eva.pavlikova@chirs.cz
+420 605 501 990
Sledujte mě na FB
Podrobně o mně
Hodnocení mých klientů
Seznam mých nabídek
Seznam mých poptávek
Statistika prodeje
Podobné nabídky
Prodej bytu 3+kk se dvěma balkony, sklepem a garážovým stáním, OV, 110m2, ul. Schwarzenberská 708/2, Praha 5 - Jinonice
ul. Schwarzenberská 708/2, Praha 5 - Jinonice
REZERVOVÁNOProdej bytu 3+1 s balkonem, OV, 88m2, ul. Verdunská 534/4, Praha 6 - Bubeneč
Verdunská 534/4, Praha 6 - Bubeneč
10 300 000Kč REZERVOVÁNO{{record.name}}
{{record.address}}
Prohlídkový den: {{record.openday}}
{{record.price}} REZERVOVÁNO NOVINKA{{similiarButtonText}} Nabídněte svou nemovitost Zjistěte cenu Vašeho bytu
Poptávající, kteří si už tuto nabídku prohlíželi (celkem: 211)
{{connectionButtonText}} Nabídněte svou nemovitost Zjistěte cenu Vašeho bytu
Prodáváte? Máme pro vás kupce!
Dostávejte nové nabídky automaticky
Zjistěte tržní cenu Vašeho bytu.
Osobní zodpovědnost je tajemstvím našeho úspěchu.
Napište Vám vyhovující termín prohlídky
Zde napište Váš dotaz
Vybranný termín
Tento souhlas uděluji na dobu do realizace prohlídky nemovitosti, nejdéle však na dobu 3 měsíců. Beru na vědomí, že mám právo udělený souhlas kdykoliv odvolat.
Udělením tohoto souhlasu současně potvrzuji, že jsem se seznámil/seznámila se Zásadami zpracování a ochrany osobních údajů a se všemi právy, které mi v souvislosti se zpracováním osobních údajů náleží.
Tento souhlas uděluji na dobu zpracování odpovědi na můj dotaz, nejdéle však na dobu 1 měsíce. Beru na vědomí, že mám právo udělený souhlas kdykoliv odvolat.
Udělením tohoto souhlasu současně potvrzuji, že jsem se seznámil/seznámila se Zásadami zpracování a ochrany osobních údajů a se všemi právy, které mi v souvislosti se zpracováním osobních údajů náleží.
